9,6 Gemiddelde beoordeling

Pluvierstraat 272

'S-Gravenhage

€ 275.000,- k.k.

Interesse?

Neem contact met ons op!

Plan een afspraak in

Omschrijving

Heerlijk licht en goed onderhouden 3-kamer appartement van ca. 52m2 gelegen op loopafstand van strand, zee en duinen!

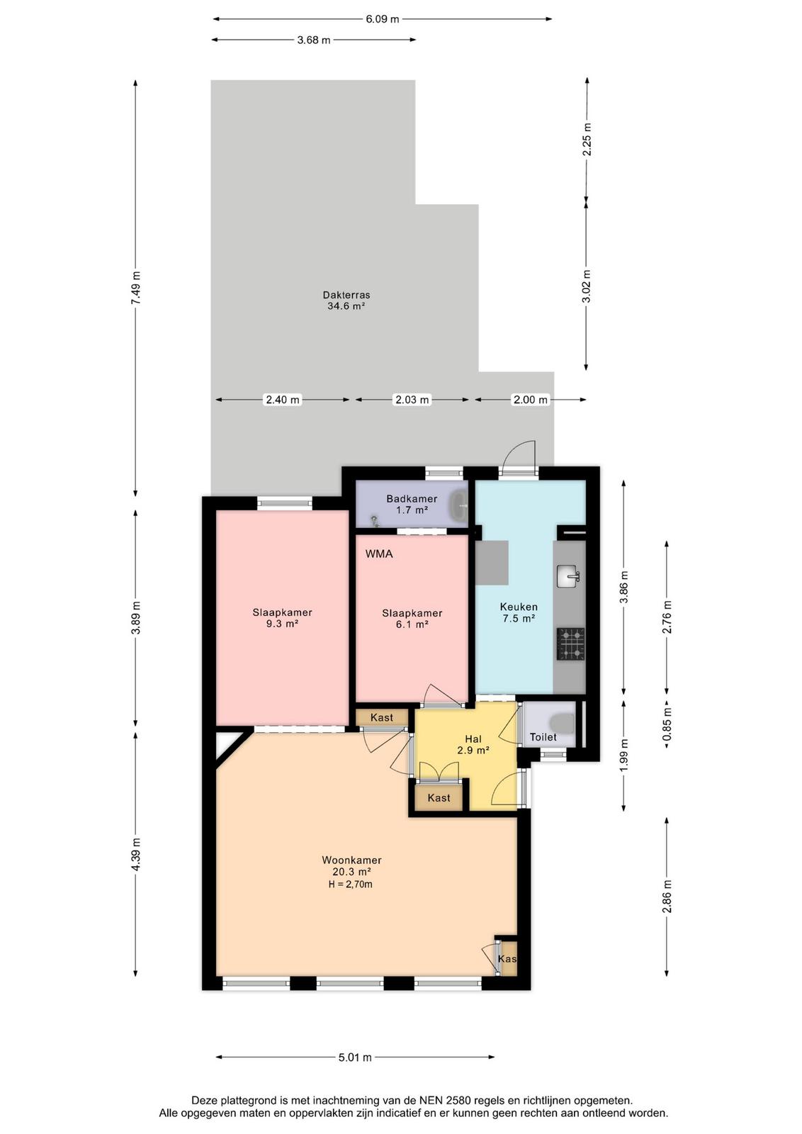
Het appartement beschikt o.a. over twee slaapkamers, een royale en lichte woon-/eetkamer, een nette keuken en badkamer én een ruim en zonnig dakterras van ca. 35m2 op het zuidoosten.

In 2025 zijn aan de achterzijde nieuwe kunststof kozijnen met HR++ beglazing aangebracht.

Op de hoek ligt het levendige Tesselseplein met een supermarkt en diverse gezellige buurtwinkels voor al je dagelijkse voorzieningen.

Daarnaast gunstig gelegen ten opzichte van scholen, recreatie, sportverenigingen, openbaar vervoer én de gezellige haven van Scheveningen.

Indeling
Open portiek; trapopgang naar de eerste verdieping.

Eerste verdieping
Entree appartement; hal met vaste kast en separaat toilet; royale en lichte L-vormige woon-/eetkamer aan de voorzijde; achtergelegen ruime hoofdslaapkamer; tweede (slaap-, werk-) kamer aan de achterzijde met aansluitend de badkamer voorzien van een douche, wastafel en wasmachine aansluiting; nette (dichte) keuken aan de achterzijde met diverse inbouwapparatuur en opstelplaats van de CV-ketel. Middels een deur toegang tot het ruime en zonnige dakterras (ZO) van circa 35m2.

Bijzonderheden
- Erfpacht eeuwigdurend uitgegeven;
- Canon: € 12,92 per half jaar + € 16,50 beheerkosten;
- Ruim en zonnig dakterras (ZO) van circa 35m2;
- Op loopafstand van de duinen, het Zuiderstrand en de (jacht)havens van Scheveningen;
- Bouwjaar 1925;
- Aanvaarding kan per direct;
- Zeer actieve VvE, bijdrage € 50,- per maand;
- Nieuwe dakbedekking (2024);
- Energielabel E;
- Voorzijde voorzien van houten kozijnen met dubbele beglazing
- Achterzijde voorzien van nieuwe kunststof kozijnen (2025) met HR++ beglazing
- CV ketel Remeha Avanta uit 2009;
- Elektra: 8 groepen + ALS;
- Algemene ouderdoms- en materialenclausule van toepassing;
- Gebruiksoppervlak wonen: 53 m2;
- Gebouwgeboden buitenruimte: 35 m2;
- Inhoud: 179 m3;
- Exact gemeten volgens de Meetinstructie Gebruiksoppervlakte woningen.

Deze verkoopbeschrijving is met zorg samengesteld. Alle tekst is echter informatief en bedoeld als uitnodiging om over eventuele aankoop in gesprek te komen. U kunt aan deze verkoop-beschrijving geen rechten ontlenen.
Lees meer

Kenmerken

Overdracht

Vraagprijs
€ 275.000,- k.k.
Status
verkocht onder voorbehoud
Aanvaarding
in overleg

Bouw

Soort woning
appartement
Soort appartement
portiekwoning
Aantal woonlagen
1
Woonlaag
2
Kwaliteit
normaal
Bouwvorm
bestaande bouw
Bouwjaar
1925
Open portiek
ja
Huidige bestemming
woonruimte
Onderhoud binnen
goed
Onderhoud buiten
goed
Dak
plat dak
Voorzieningen
tv kabel

Energie

Energielabel
E
Verwarming
c.v.-ketel
Warm water
c.v.-ketel

Oppervlakten en inhoud

Woonoppervlakte
53 m²
Buitenruimte oppervlakte
35 m²

Indeling

Aantal kamers
3
Aantal slaapkamers
2

Buitenruimte

Ligging
aan bosrand, aan rustige weg, in woonwijk en in bosrijke omgeving

Garage / Schuur / Berging

Parkeergelegenheid
openbaar parkeren, betaald parkeren en parkeervergunningen

Plattegronden

Locatie

Reageer of stel een vraag!

Vul uw gegevens in en wij nemen zo spoedig mogelijk contact met u op.