9,6 Gemiddelde beoordeling

Molenstraat 108

Monster

€ 475.000,- k.k.

Interesse?

Neem contact met ons op!

Plan een afspraak in

Omschrijving

Heerlijk lichte en goed onderhouden 3-laagse hoekeengezinswoning van ca. 110m2 gelegen op een uitstekende locatie nabij het centrum en het strand!

Deze fijne gezinswoning beschikt o.a. over 4 slaapkamers, een royale en lichte doorzon woon-/eetkamer, een nette keuken en badkamer, een oprit met ruimte voor meerdere auto’s, een vrijstaande garage en een zonnige achtertuin op het noordwesten.

Ideaal gelegen, op loopafstand van het gezellige centrum van Monster met diverse winkels, supermarkten, scholen, sportvoorzieningen en speeltuintjes.

Tevens gunstig gesitueerd t.o.v. het strand, de duinen, het openbaar vervoer en de uitvalswegen richting Den Haag en Rotterdam.

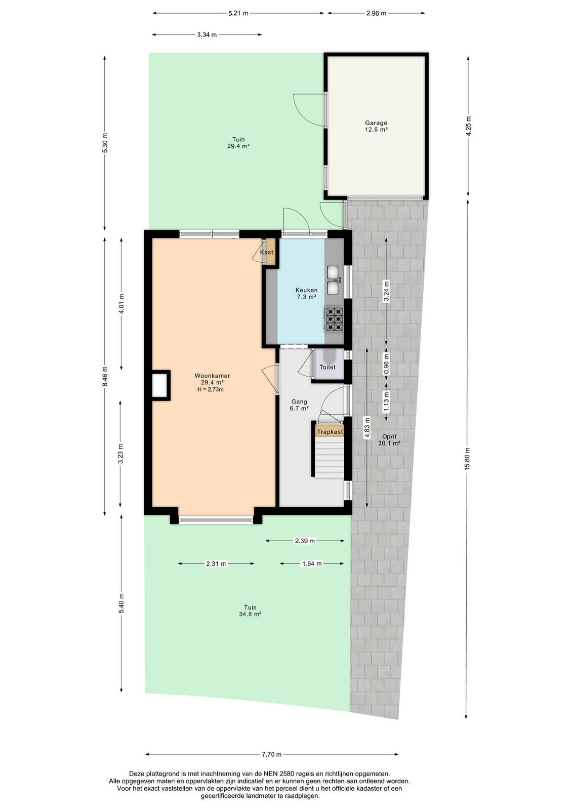
Indeling
Voortuin
Fraai aangelegde voortuin. Aan de zijkant van de woning bevinden zich de woningentree, een oprit met ruimte voor meerdere auto’s en toegang tot de vrijstaande garage met elektrisch bedienbare deur.

Begane grond
Woningentree met toegang tot de hal met garderobe, trapkast waarin meterkast, trapopgang en modern separaat toilet met fonteintje; royale en lichte doorzon woon-/eetkamer met zitgedeelte aan de voorzijde en eetgedeelte aan de achterzijde; nette keuken aan de achterzijde met composiet werkblad, veel werk- en kastruimte en diverse inbouwapparatuur. De keuken en woon-/eetkamer geven toegang tot de zonnige achtertuin op het noordwesten.

Eerste verdieping
Overloop met trapopgang; ruime voorslaapkamer met vaste kast; ruime achterslaapkamer met vaste kast; achterzij-slaapkamer met toegang tot het achterbalkon (NW); nette badkamer met douche, wastafelmeubel, handdoekradiator, toilet en daglichtinval.

Tweede verdieping
Ruime zolderruimte met dakraam en opstelplaats van de CV-ketel; separate (slaap-)kamer met dakraam.

Garage
Vrijstaande garage (ca. 4,25 x 2,96 m) met wasmachine- en drogeropstelling en een elektrisch bedienbare roldeur.

Bijzonderheden
- Eigen grond;
- Bouwjaar 1952;
- Oplevering in overleg;
- Energielabel E;
- Houten kozijnen en aluminium kozijnen met dubbele beglazing;
- Buitenschilderwerk uitgevoerd in 2023;
- CV-ketel Remeha Avanta uit 2024;
- Elektra: 5 groepen met aardlekschakelaar;
- Zonnige achtertuin op het noordwesten;
- Vrijstaande garage met elektrisch bedienbare roldeur;
- Eigen oprit met parkeergelegenheid voor meerdere auto’s;
- Zeer gunstig gelegen nabij het centrum van Monster, het strand, de duinen, het openbaar vervoer en uitvalswegen;
- Algemene ouderdoms- en materialenclausule van toepassing;
- Perceeloppervlakte: 172 m2;
- Gebruiksoppervlakte: 110 m2;
- Gebouwgebonden buitenruimte: 1 m2;
- Externe bergruimte: 13 m2;
- Inhoud: 365 m3;
- Exact gemeten volgens de Meetinstructie Gebruiksoppervlakte woningen.

Deze beschrijving is met zorg samengesteld. Alle tekst is echter informatief en bedoeld als uitnodiging om over eventuele aankoop in gesprek te komen. Er kunnen door derden aan deze verkoopbeschrijving geen rechten worden ontleend jegens de makelaar of verkoper.
Lees meer

Kenmerken

Overdracht

Vraagprijs
€ 475.000,- k.k.
Status
verkocht onder voorbehoud
Aanvaarding
in overleg

Bouw

Soort woning
woonhuis
Soort woonhuis
eengezinswoning
Type woonhuis
hoekwoning
Aantal woonlagen
3
Kwaliteit
normaal
Bouwvorm
bestaande bouw
Bouwjaar
1952
Huidige bestemming
woonruimte
Onderhoud binnen
goed
Onderhoud buiten
goed
Dak
zadeldak
Voorzieningen
dakraam, tv kabel, schuifpui en rookkanaal

Energie

Energielabel
E
Verwarming
c.v.-ketel
Warm water
c.v.-ketel

Oppervlakten en inhoud

Woonoppervlakte
110 m²
Perceeloppervlakte
172 m²
Inhoud
365 m³
Bergruimte oppervlakte
13 m²
Buitenruimte oppervlakte
1 m²

Indeling

Aantal kamers
5
Aantal slaapkamers
4

Buitenruimte

Ligging
aan rustige weg, in centrum en in woonwijk
Tuin
achtertuin met een oppervlakte van 43 m² en is gelegen op het noordwesten

Garage / Schuur / Berging

Garage
vrijstaande stenen garage

Locatie

Reageer of stel een vraag!

Vul uw gegevens in en wij nemen zo spoedig mogelijk contact met u op.