9,6 Gemiddelde beoordeling

Kornalijnhorst 12

'S-Gravenhage

€ 425.000,- k.k.

Interesse?

Neem contact met ons op!

Plan een afspraak in

Omschrijving

Heerlijk licht en uitstekend onderhouden 4-kamer hoekappartement (ca. 125m2) op de vierde verdieping met zonnig balkon, aparte (fietsen) berging en parkeergelegenheid op eigen terrein.

Ideaal gelegen op een prachtig groene locatie, nabij winkelcentrum Mariahoeve, The Mall of the Netherlands, diverse (basis)scholen, sportfaciliteiten en het Haagse Bos.

Dankzij de centrale ligging t.o.v. station Den Haag Centraal, station Mariahoeve en Laan van NOI, met diverse tram- en busverbindingen én de nabijheid van de A4, A12 en A44 is de bereikbaarheid uitstekend.

Indeling
Gesloten portiek met brievenbussen en videofooninstallatie. Via het trappenhuis of de lift bereikt u de vierde verdieping.

Vierde verdieping
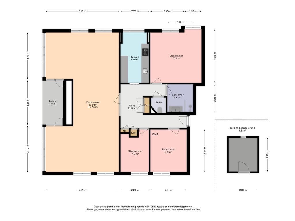
Entree appartement. Ruime U-vormige hal met meterkast, vaste kasten en een modern separaat toilet met fonteintje. De moderne badkamer is uitgerust met een inloopdouche met hand- en regendouche, een dubbel wastafelmeubel en de opstelplaats voor de boiler. Aan de voorzijde bevinden zich twee goed bemeten slaapkamers en aan de achterzijde de ruime hoofdslaapkamer. De moderne (dichte) keuken is voorzien van een composiet werkblad en diverse luxe inbouwapparatuur. Verder biedt de royale en lichte U-vormige living een vrij en groen uitzicht en toegang tot het zonnige balkon op het zuidwesten.

Bijzonderheden
- Bouwjaar 1968;
- Oplevering in overleg;
- Energielabel C;
- Erfpacht uitgegeven tot en met 31-12-2035 (nieuwe aanbieding is aangevraagd);
- Canon € 167,22 per jaar;
- Actieve V.v.E. bijdrage: € 313,- per maand;
- Voorschot stookkosten: € 97,- per maand;
- Volledig voorzien van kunststof kozijnen met dubbele beglazing;
- Elektra: 9 groepen + A.L.S.;
- Glasvezelaansluiting aanwezig;
- Videofoon aanwezig;
- Ruim en zonnig balkon met elektrisch bedienbaar zonnescherm;
- Eigen (afgesloten) kelderberging in onderbouw van het complex;
- Goede parkeermogelijkheden op eigen terrein;
- Algemene ouderdoms- en materialenclausule van toepassing;
- Gebruiksoppervlakte wonen: 125 m2;
- Gebouw gebonden buitenruimte: 6 m2;
- Externe buitenruimte: 6 m2;
- Inhoud: 410 m3;
- Exact gemeten volgens de Meetinstructie Gebruiksoppervlakte woningen.

Deze verkoopbeschrijving is met zorg samengesteld. Alle tekst is echter informatief en bedoeld als uitnodiging om over eventuele aankoop in gesprek te komen. U kunt aan deze verkoop-beschrijving geen rechten ontlenen.
Lees meer

Kenmerken

Overdracht

Vraagprijs
€ 425.000,- k.k.
Status
verkocht onder voorbehoud
Aanvaarding
in overleg

Bouw

Soort woning
appartement
Soort appartement
portiekflat
Aantal woonlagen
1
Woonlaag
4
Kwaliteit
normaal
Bouwvorm
bestaande bouw
Bouwjaar
1968
Open portiek
nee
Huidige bestemming
woonruimte
Onderhoud binnen
goed
Onderhoud buiten
goed
Dak
plat dak
Voorzieningen
tv kabel, glasvezel kabel en lift

Energie

Energielabel
C
Verwarming
blokverwarming
Warm water
centrale voorziening

Oppervlakten en inhoud

Woonoppervlakte
125 m²
Bergruimte oppervlakte
6 m²
Buitenruimte oppervlakte
6 m²

Indeling

Aantal kamers
4
Aantal slaapkamers
3

Buitenruimte

Ligging
aan rustige weg, in woonwijk en vrij uitzicht

Garage / Schuur / Berging

Schuur/berging
box

Plattegronden

Locatie

Reageer of stel een vraag!

Vul uw gegevens in en wij nemen zo spoedig mogelijk contact met u op.