9,6 Gemiddelde beoordeling
verkocht onder voorbehoud
17

Hoog Buurlostraat 95

'S-Gravenhage

€ 249.500,- k.k.

Interesse?

Neem contact met ons op!

Plan een afspraak in

Omschrijving

Heerlijk licht en goed onderhouden 4-kamer appartement (ca. 70m2) gelegen in een rustige straat op een centrale locatie!

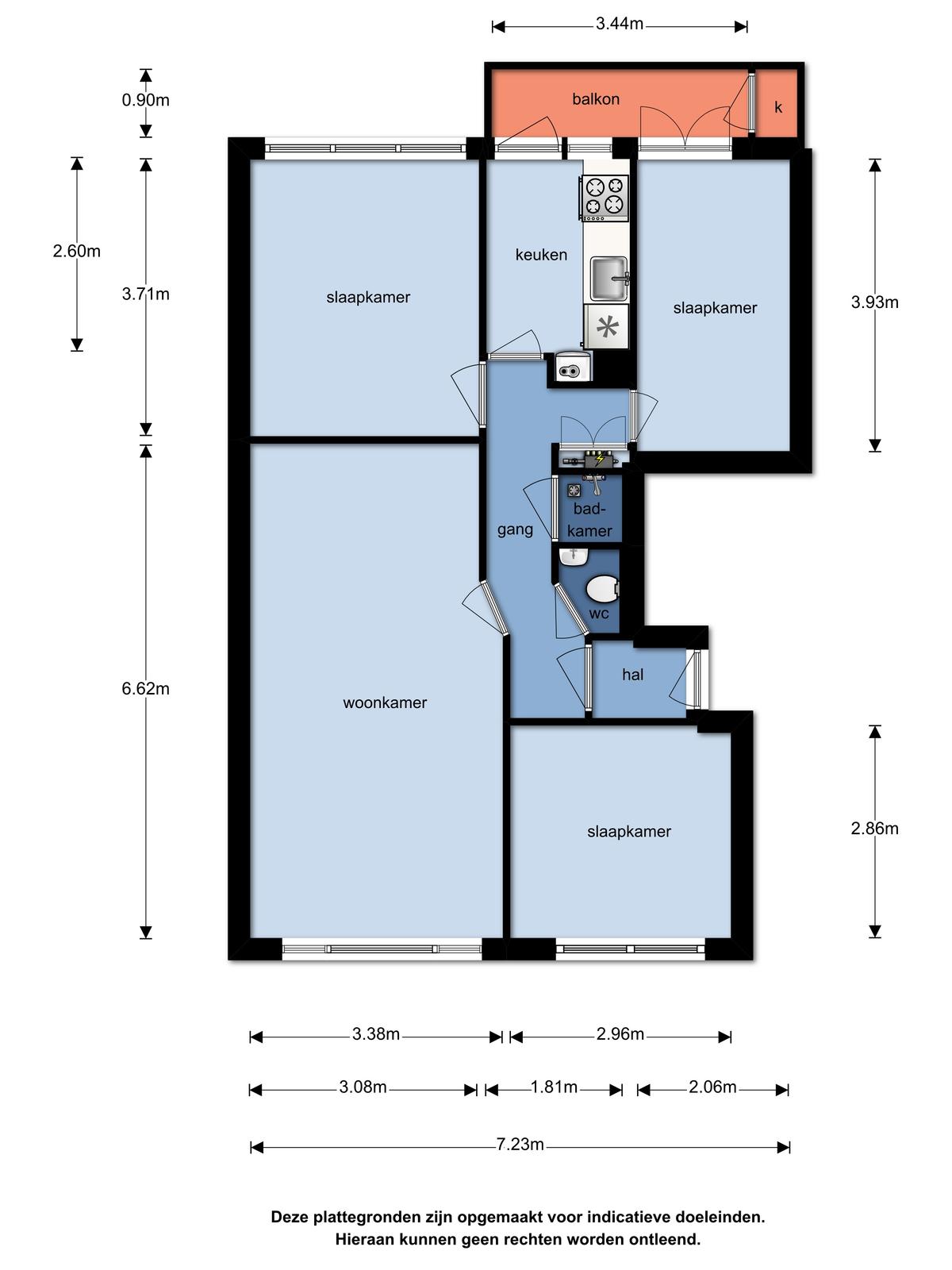
Het appartement beschikt over drie slaapkamers, een goed formaat woon-/eetkamer, een nette keuken én badkamer en een zonnig achterbalkon op het noordwesten.

Ideaal gelegen, op steenworp afstand van diverse winkels (winkelcentrum Leyenburg en winkelstraat Dierenselaan/Apeldoornselaan), het openbaar vervoer en scholen.

Groen-, sport- en recreatievoorzieningen (Zuiderpark) alsmede zee, strand en duinen bevinden zich op enkele minuten fietsafstand.

Indeling
Open portiek; trapopgang naar de eerste verdieping.

Eerste verdieping
Entree appartement; L-vormige hal met garderobe, separaat toilet met fonteintje, vaste kast alwaar meterkast en separate badkamer v.v. een douche en ventilatie; voorzij slaapkamer; goed formaat woon-/eetkamer aan voorzijde; achtergelegen ruime (hoofd-)slaapkamer; ruime achterzij slaapkamer; nette keuken met diverse apparatuur en opstelplaats CV-ketel. De keuken en achterzij slaapkamer geven beiden toegang tot het zonnige balkon (NW) met balkonkast.

Bijzonderheden
- Eigen grond;
- Bouwjaar 1928;
- Oplevering in overleg;
- Energielabel D;
- Actieve V.v.E. bijdrage: € 90,- per maand;
- Volledig voorzien van kunststof kozijnen met dubbele beglazing;
- Elektra: 4 groepen + ALS;
- CV-ketel van Ferroli uit 2024;
- Zonnig achterbalkon (NW) met balkonkast;
- Algemene ouderdoms- materialen en niet bewoningsclausule van toepassing;
- As is-where is clausule van toepassing;
- Gebruiksoppervlak wonen: 70 m2;
- Gebouwgebonden buitenruimte: 3 m2;
- Externe bergruimte: 1 m2;
- Inhoud: 246 m3;
- Exact gemeten volgens de Meetinstructie Gebruiksoppervlakte woningen.

Deze beschrijving is met zorg samengesteld. Alle tekst is echter informatief en bedoeld als uitnodiging om over eventuele aankoop in gesprek te komen. Er kunnen door derden aan deze verkoopbeschrijving geen rechten worden ontleend jegens de makelaar of verkoper.
Lees meer

Kenmerken

Overdracht

Vraagprijs
€ 249.500,- k.k.
Status
verkocht onder voorbehoud
Aanvaarding
in overleg

Bouw

Soort woning
appartement
Soort appartement
portiekwoning
Aantal woonlagen
1
Woonlaag
2
Kwaliteit
normaal
Bouwvorm
bestaande bouw
Bouwjaar
1928
Bouwperiode
1906-1930
Open portiek
ja
Huidige bestemming
woonruimte
Onderhoud binnen
goed
Onderhoud buiten
goed
Dak
plat dak
Voorzieningen
tv kabel

Energie

Energielabel
D
Verwarming
c.v.-ketel
Warm water
c.v.-ketel

Oppervlakten en inhoud

Woonoppervlakte
70 m²
Bergruimte oppervlakte
1 m²
Buitenruimte oppervlakte
3 m²

Indeling

Aantal kamers
4
Aantal slaapkamers
3

Buitenruimte

Ligging
aan rustige weg en in woonwijk

Garage / Schuur / Berging

Parkeergelegenheid
openbaar parkeren, betaald parkeren en parkeervergunningen

Plattegronden

Locatie

Reageer of stel een vraag!

Vul uw gegevens in en wij nemen zo spoedig mogelijk contact met u op.