9,6 Gemiddelde beoordeling
verkocht
1

C.T. Storklaan 467

Rijswijk

verkocht

Interesse?

Neem contact met ons op!

Gratis waardebepaling

Omschrijving

Stijlvol wonen in de High Rise van Rijswijk?

In het hypermoderne en duurzame appartementencomplex The Minister bevindt zich dit luxe 4-kamer hoekappartement van maar liefst 165m² op de 16e verdieping met een schitterend panoramisch uitzicht over Rijswijk, Delft, Rotterdam, het Westland en de skyline van Den Haag.

Het appartement betreft het grootste type binnen het gehele complex en beschikt onder andere over drie ruime slaapkamers, een royale living met luxe open keuken, twee badkamers, een gastentoilet, een eigen (fietsen)berging, twee parkeerplaatsen en twee zonnige terrassen.

Centraal gelegen in Rijswijk met uitstekende openbaar vervoersverbindingen en directe aansluiting op de uitvalswegen A4, A12 en A13. Den Haag, Delft en Rotterdam zijn snel bereikbaar. Winkelcentrum In de Bogaard, diverse scholen, sportvoorzieningen en meerdere parken, waaronder Park Steenvoorde en Park De Voorde, liggen op loopafstand.
Indeling

De representatieve entreehal beschikt onder meer over cameratoezicht, een videofooninstallatie, brievenbussen, een inpandige pakketkluisservice en via één van de vier liften bereikt u de 16e verdieping.
Zestiende verdieping

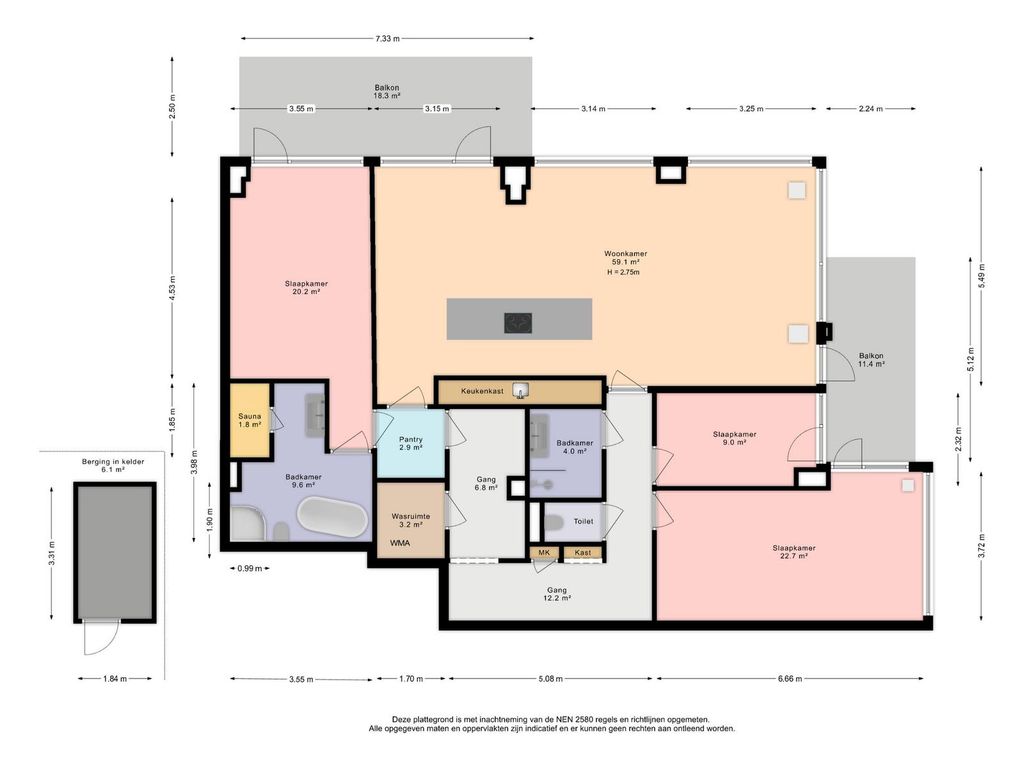
Entree appartement. U-vormige hal met garderobe, meterkast, moderne toiletruimte en een technische ruimte met WKO-installatie, WTW-installatie en aansluitingen voor wasmachine en droger. Royale woonkamer met grote raampartijen en schitterend panoramisch uitzicht. De luxe open keuken is centraal in de woonkamer gesitueerd en beschikt over een riant kookeiland en hoogwaardige inbouwapparatuur en een extra bijkeuken. Vanuit de woonkamer is toegang tot beide terrassen welke zijn gelegen op het zuidwesten en noordwesten.

Drie ruime slaapkamers van circa 20 m², 9 m² en 23 m² met allen een directe toegang tot een terras. De master bedroom beschikt over een exclusieve wellness badkamer met inbouwspots, sauna, stoomdouchecabine met infrarood- en lichttherapie, regendouche en radio, ligbad, douchetoilet, een tweepersoons wastafelmeubel met spiegelkast, opbergkast en handdoekradiator. Aan de andere zijde van het appartement bevinden zich de twee overige slaapkamers met nabijgelegen tweede badkamer, voorzien van een inloopdouche, wastafelmeubel en extra opbergkast.

Bijzonderheden
- Grootste type binnen het gehele complex;
- Grote panoramische ramen met fenomenaal uitzicht over Rijswijk, Delft, Rotterdam, het Westland, Scheveningen en de skyline van Den Haag;
- Royale living met luxe open keuken en riant kookeiland;
- Drie ruime slaapkamers;
- Master bedroom met exclusieve wellness badkamer;
- Twee royale terrassen gelegen op het zuidwesten en noordwesten;
- Twee privé parkeerplaatsen op afgesloten terrein;
- Optioneel is een derde parkeerplaats in de overdekte garage tegen meerprijs beschikbaar;
- Rondom warmtewerend glas;-
- Privé berging in de onderbouw en een gemeenschappelijke fietsenberging;
- Energielabel A+++;
- Collectieve warmte-koude-installatie (WKO) met vloerverwarming en -koeling;
- Voorzien van WTW-installatie (warmteterugwinning);
- Wateronthardersysteem aanwezig;
- Ingebouwd sprinklerinstallatiesysteem voor extra brandveiligheid;
- Volledig voorzien van aluminium kozijnen met HR++ beglazing;
- Elektra: 11 groepen met aardlekschakelaar en 3-fase krachtstroom;
- Glasvezelinternet aanwezig;
- Videofooninstallatie aanwezig;
- Zonnepanelen voor het algemene stroomverbruik;
- Oorspronkelijk bouwjaar 2001, voormalig kantoorpand dat in 2023 is getransformeerd tot hypermodern woongebouw waarin privacy, veiligheid en duurzaamheid centraal staan;
- Gelegen op eigen grond;
- Actieve VvE, bijdrage € 420,- per maand en voor twee parkeerplaatsen samen € 42,- per maand;
- Centrale ligging in Rijswijk met uitstekende openbaar vervoersverbindingen en directe aansluiting op de uitvalswegen A4, A12 en A13;
- Den Haag, Delft en Rotterdam snel bereikbaar;
- Oplevering in overleg;
- Gebruiksoppervlak wonen: 167 m²;
- Gebouwgebonden buitenruimte: 30 m²;
- Externe bergruimte: 6 m²;
- Inhoud: 544 m³;
- Exact gemeten volgens de Meetinstructie Gebruiksoppervlakte woningen.
Lees meer

Kenmerken

Overdracht

Status
verkocht
Aanvaarding
in overleg

Bouw

Soort woning
appartement
Soort appartement
portiekflat
Aantal woonlagen
1
Woonlaag
16
Kwaliteit
luxe
Bouwvorm
bestaande bouw
Bouwjaar
2023
Open portiek
nee
Huidige bestemming
woonruimte
Onderhoud binnen
uitstekend
Onderhoud buiten
uitstekend
Dak
plat dak
Voorzieningen
tv kabel, glasvezel kabel, sauna en lift

Energie

Energielabel
A+++
Verwarming
warmte terugwininstallatie, vloerverwarming geheel en warmtepomp
Warm water
centrale voorziening

Oppervlakten en inhoud

Woonoppervlakte
167 m²
Bergruimte oppervlakte
6 m²
Buitenruimte oppervlakte
30 m²

Indeling

Aantal kamers
4
Aantal slaapkamers
3

Buitenruimte

Ligging
aan rustige weg, in centrum, in woonwijk en vrij uitzicht

Garage / Schuur / Berging

Garage
parkeerplaats

Foto's

Locatie

Reageer of stel een vraag!

Vul uw gegevens in en wij nemen zo spoedig mogelijk contact met u op.