9,6 Gemiddelde beoordeling

Burgemeester Elsenlaan 321a

Rijswijk

€ 349.500,- k.k.

Interesse?

Neem contact met ons op!

Plan een afspraak in

Omschrijving

Modern en energiezuinig 2-kamer appartement van circa 70m2 gelegen op de begane grond van het recent getransformeerde complex The Harbour House!

Dit stijlvolle appartement beschikt over een separate werkruimte, een comfortabel slaapgedeelte, een royale living met open keuken, een moderne badkamer, een eigen (fietsen) berging en een privéparkeerplaats in de ondergrondse parkeergarage.

Kortom, een ideale combinatie van comfortabel wonen en prettig (thuis)werken.

Gelegen in het populaire Havenkwartier, op korte afstand van de winkels aan de Dr. H. Colijnlaan, winkelcentrum In de Bogaard, het gezellige centrum van Oud-Rijswijk, het openbaar vervoer (tram, bus en station) en de uitvalswegen A4, A12 en A13.

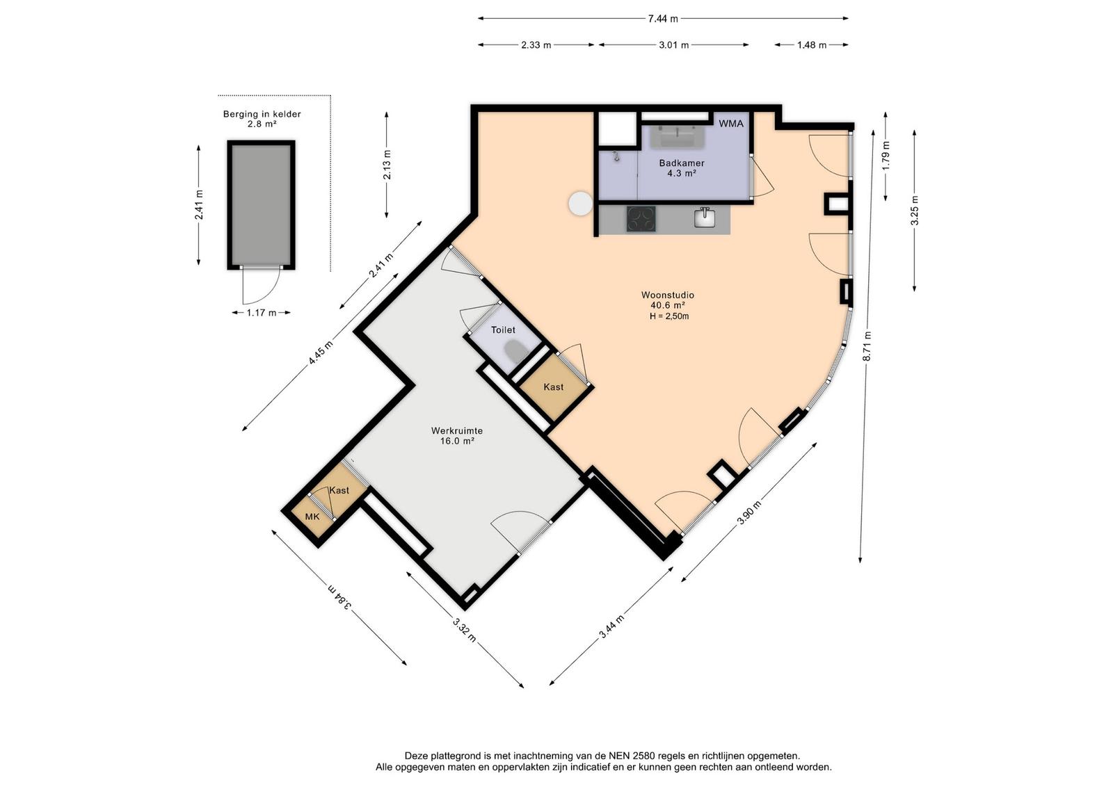
Indeling
Entree op de begane grond. Ruime en lichte werkruimte met meterkast en vaste kast. Hal met modern separaat toilet met fonteintje. Royale woonstudio met een comfortabel slaapgedeelte aan de achterzijde en een centraal gesitueerde open keuken voorzien van diverse inbouwapparatuur. De moderne badkamer is uitgerust met een douche, wastafelmeubel, handdoekradiator en wasmachine opstelplaats. De vele grote raampartijen door het appartement zorgen voor een prachtige lichtinval en een ruimtelijk gevoel.

Bijzonderheden
- Het gebouw is volledig getransformeerd in 2024;
- Gebouw winnaar Publieksprijs Architectuurprijs Den Haag 2025 (ontwerp: VWVL architectuur en stedenbouw)
- Energielabel A+
- Gelegen op eigen grond
- Volledig gasloos;
- Vloerverwarming en -koeling in de gehele woning
- Prachtige PVC-vloer door gehele woning
- Grote raampartijen voor een prachtige lichtinval
- Twee kamers, waaronder een separate werkruimte – perfect voor thuiswerken
- Privéparkeerplaats in de ondergrondse parkeerkelder
- Eigen (fiets)berging in de ondergrondse parkeerkelder
- Gestoffeerde en gemeubileerde oplevering mogelijk
- In de parkeerkelder zijn tevens 16 bezoekersparkeerplaatsen beschikbaar
- Volledig voorzien van aluminium kozijnen met HR++ beglazing
- Warmte- en koudevoorziening via warmtepomp (bijdrage€ 137,- per maand)
- Actieve VVE, bijdrage: € 111,74 per maand (inclusief parkeerplaats en berging)
- Zeer centraal gelegen, nabij de winkels aan de Dr. H. Colijnlaan, winkelcentrum in de Bogaard, het gezellige centrum Oud Rijswijk, het openbaar vervoer (tram, bus, station) en de uitvalswegen A4, A12 en A13.
- Gebruiksoppervlak wonen: 69 m2;
- Externe bergruimte: 3 m2;
- Inhoud: 205 m3;
- Exact gemeten volgens de Meetinstructie Gebruiksoppervlakte woningen.

Deze verkoopbeschrijving is met zorg samengesteld. Alle tekst is echter informatief en bedoeld als uitnodiging om over eventuele aankoop in gesprek te komen. U kunt aan deze verkoop-beschrijving geen rechten ontlenen.
Lees meer

Kenmerken

Overdracht

Vraagprijs
€ 349.500,- k.k.
Status
verkocht onder voorbehoud
Aanvaarding
in overleg

Bouw

Soort woning
appartement
Soort appartement
benedenwoning
Aantal woonlagen
1
Woonlaag
1
Bouwvorm
bestaande bouw
Bouwjaar
2024
Open portiek
nee
Huidige bestemming
woonruimte
Onderhoud binnen
uitstekend
Onderhoud buiten
uitstekend
Dak
plat dak
Voorzieningen
tv kabel, glasvezel kabel en lift

Energie

Energielabel
A+
Verwarming
vloerverwarming geheel en warmtepomp
Warm water
centrale voorziening

Oppervlakten en inhoud

Woonoppervlakte
69 m²
Bergruimte oppervlakte
3 m²

Indeling

Aantal kamers
2
Aantal slaapkamers
1

Buitenruimte

Ligging
in woonwijk

Garage / Schuur / Berging

Garage
parkeerkelder
Parkeergelegenheid
openbaar parkeren, betaald parkeren en parkeergarage
Schuur/berging
box

Plattegronden

Locatie

Reageer of stel een vraag!

Vul uw gegevens in en wij nemen zo spoedig mogelijk contact met u op.